Zróżnicowany metraż
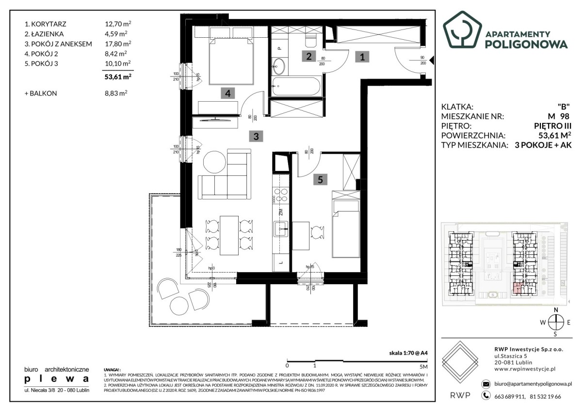
Mieszkanie 98
Liczba pokoi
3
Piętro
Piętro 3
Powierzchnia
53.61 m2
Balkon
8.83 m2
Apartamenty Poligonowa
Kameralny budynek
Komfort i wygoda
Niepowtarzalny design
Zapytaj O mieszkanie
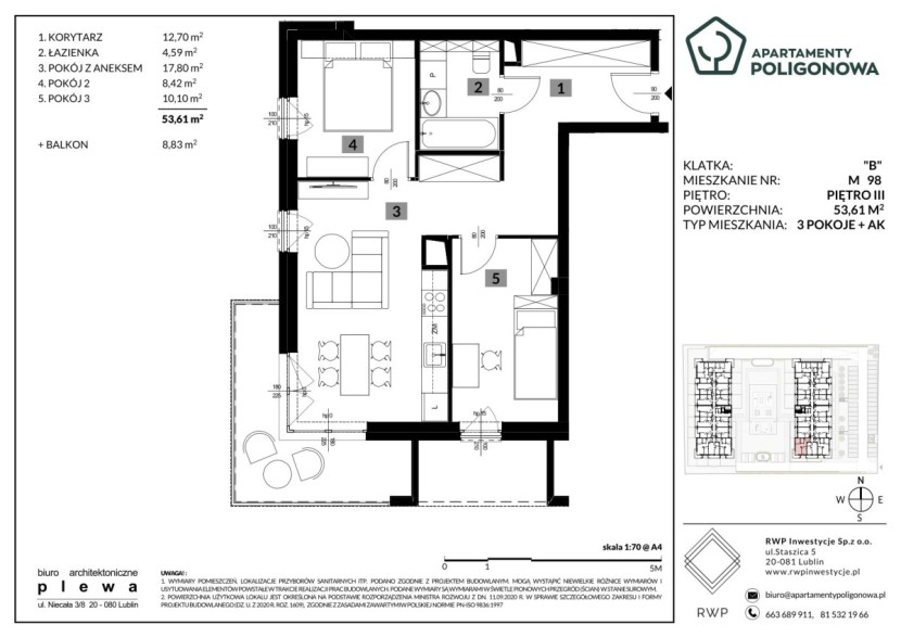
Liczba pokoi
3
Piętro
Piętro 3
Powierzchnia
53.61 m2
Balkon
8.83 m2
Zróżnicowany metraż
Kameralny budynek
Komfort i wygoda
Niepowtarzalny design