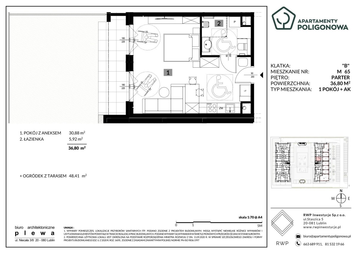
Mieszkanie 65

437 920 zł

Liczba pokoi

1

Piętro

Parter

Powierzchnia

36.8 m2

Ogródek

48.41 m2

Apartamenty Poligonowa

Ikona komfortu

Zróżnicowany metraż

Ikona komfortu

Kameralny budynek

Ikona komfortu

Komfort i wygoda

Ikona komfortu

Niepowtarzalny design

Galeria inwestycji

Zapytaj O mieszkanie

Kontakt z Nami