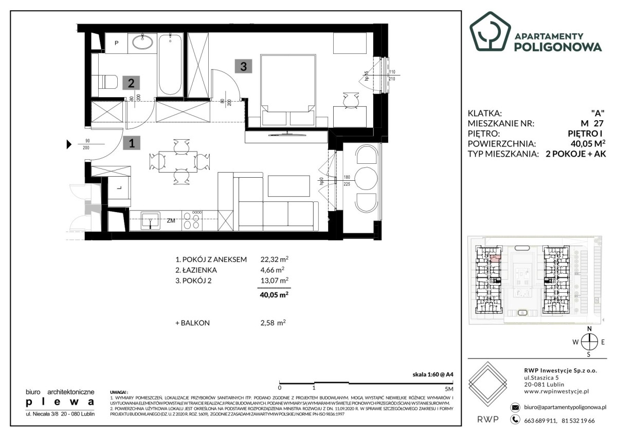
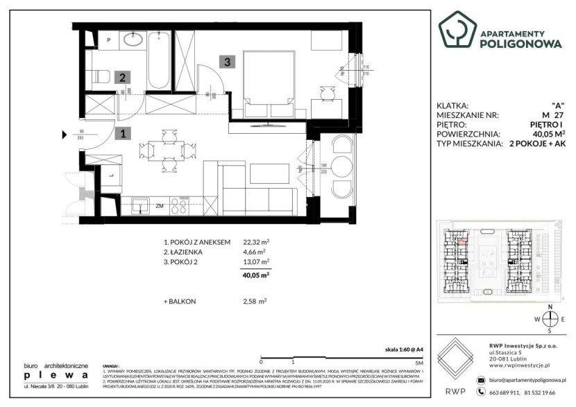
Mieszkanie 27

476 595 zł

Liczba pokoi

2

Piętro

Piętro 1

Powierzchnia

40.05 m2

Balkon

2.58 m2

Apartamenty Poligonowa

Ikona komfortu

Zróżnicowany metraż

Ikona komfortu

Kameralny budynek

Ikona komfortu

Komfort i wygoda

Ikona komfortu

Niepowtarzalny design

Galeria inwestycji

Zapytaj O mieszkanie

Kontakt z Nami