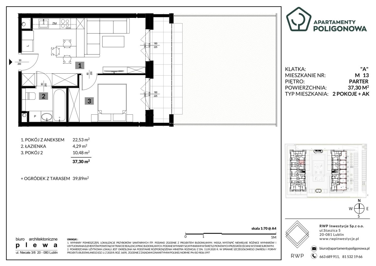
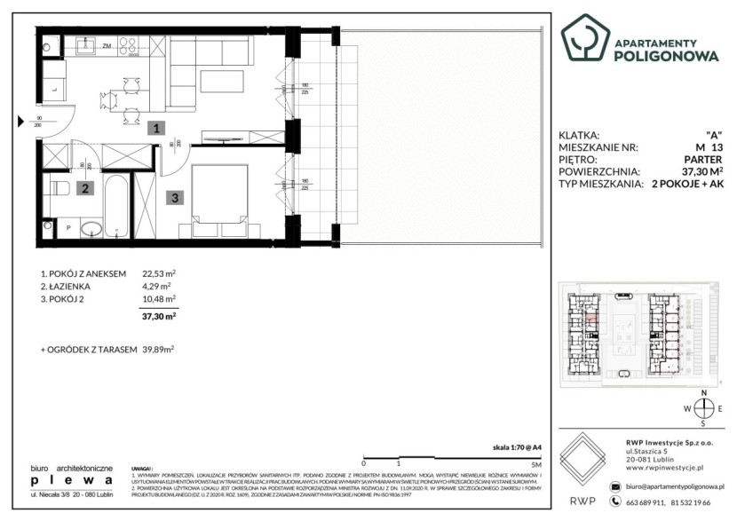
Mieszkanie 13

443 870 zł

Liczba pokoi

2

Piętro

Parter

Powierzchnia

37.3 m2

Ogródek

39.89 m2

Apartamenty Poligonowa

Ikona komfortu

Zróżnicowany metraż

Ikona komfortu

Kameralny budynek

Ikona komfortu

Komfort i wygoda

Ikona komfortu

Niepowtarzalny design

Galeria inwestycji

Zapytaj O mieszkanie

Kontakt z Nami