Zróżnicowany metraż
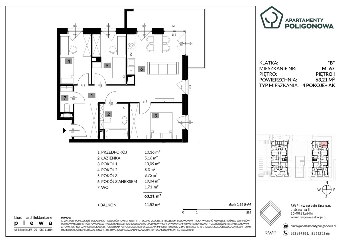
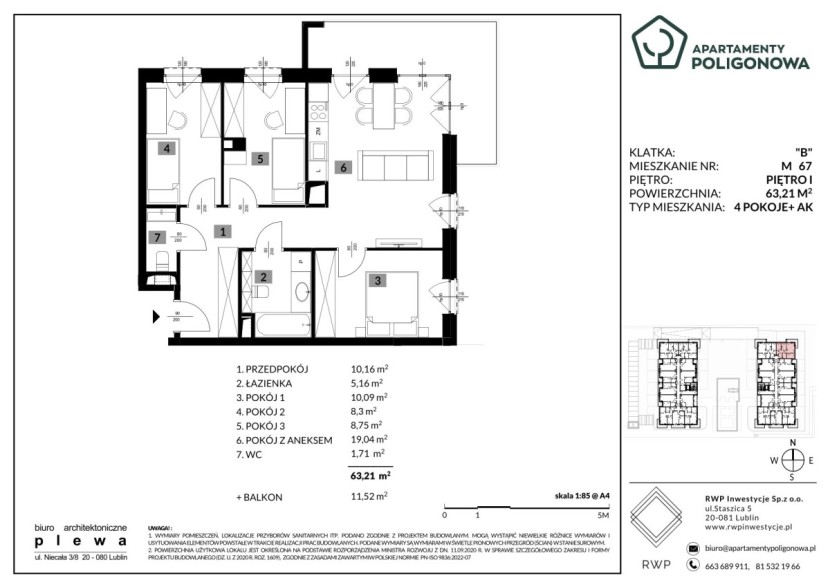
Mieszkanie 67
Liczba pokoi
4
Piętro
Piętro 1
Powierzchnia
63.21 m2
Balkon
11.52 m2
Apartamenty Poligonowa
Kameralny budynek
Komfort i wygoda
Niepowtarzalny design
Zapytaj O mieszkanie
Liczba pokoi
4
Piętro
Piętro 1
Powierzchnia
63.21 m2
Balkon
11.52 m2
Zróżnicowany metraż
Kameralny budynek
Komfort i wygoda
Niepowtarzalny design