Zróżnicowany metraż
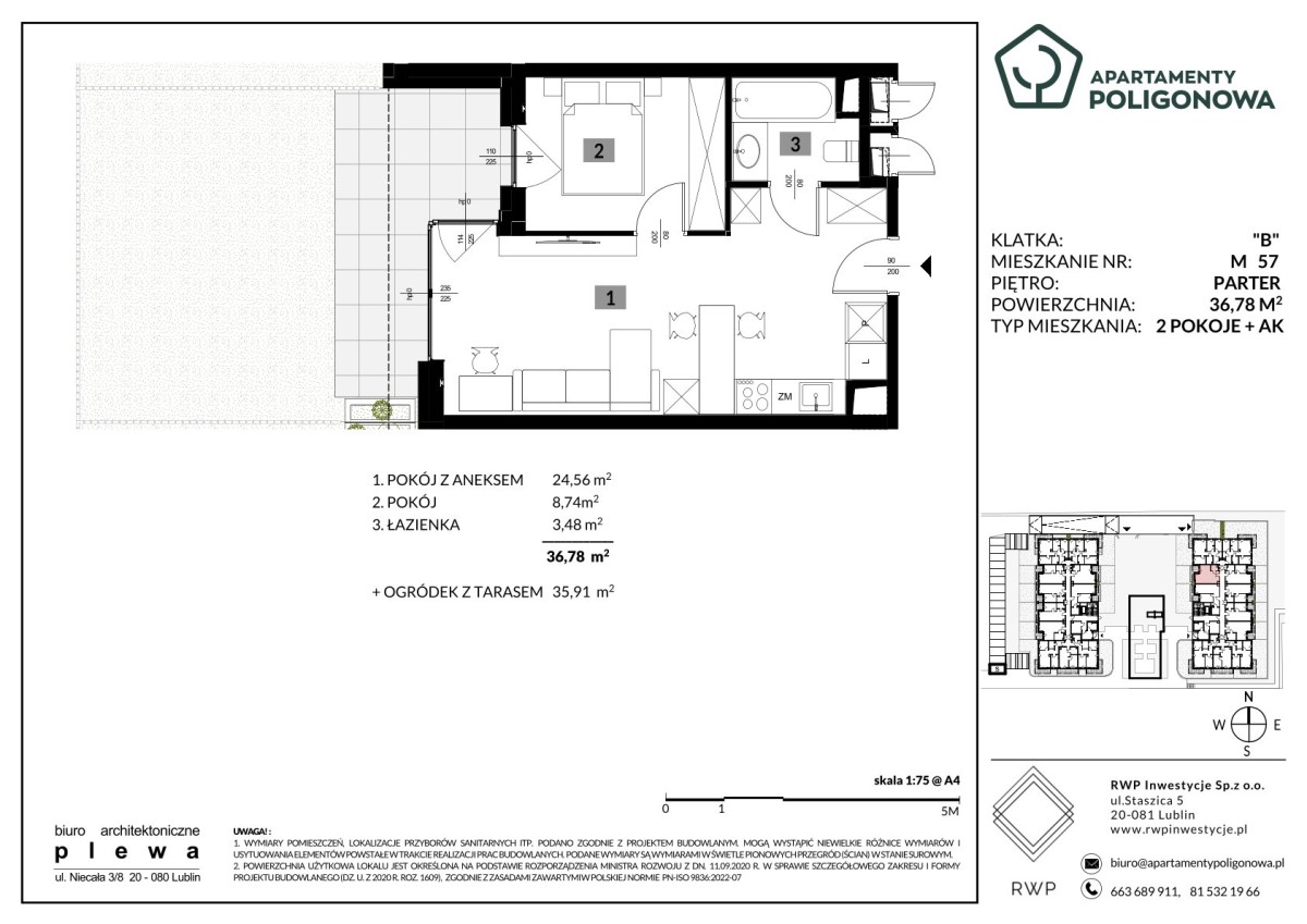
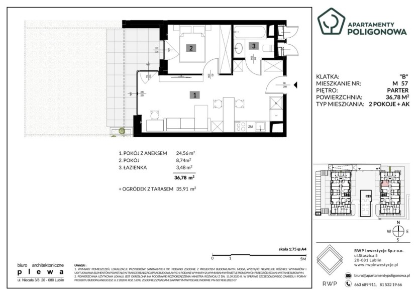
Mieszkanie 57
Liczba pokoi
2
Piętro
Parter
Powierzchnia
36.78 m2
Ogródek
35.91 m2
Apartamenty Poligonowa
Kameralny budynek
Komfort i wygoda
Niepowtarzalny design
Zapytaj O mieszkanie
Liczba pokoi
2
Piętro
Parter
Powierzchnia
36.78 m2
Ogródek
35.91 m2
Zróżnicowany metraż
Kameralny budynek
Komfort i wygoda
Niepowtarzalny design