Zróżnicowany metraż
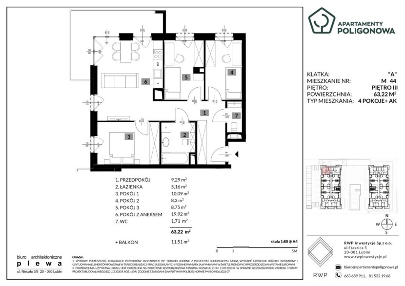
Mieszkanie 44
Liczba pokoi
4
Piętro
Piętro 3
Powierzchnia
63.22 m2
Balkon
11.51 m2
Apartamenty Poligonowa
Kameralny budynek
Komfort i wygoda
Niepowtarzalny design
Zapytaj O mieszkanie
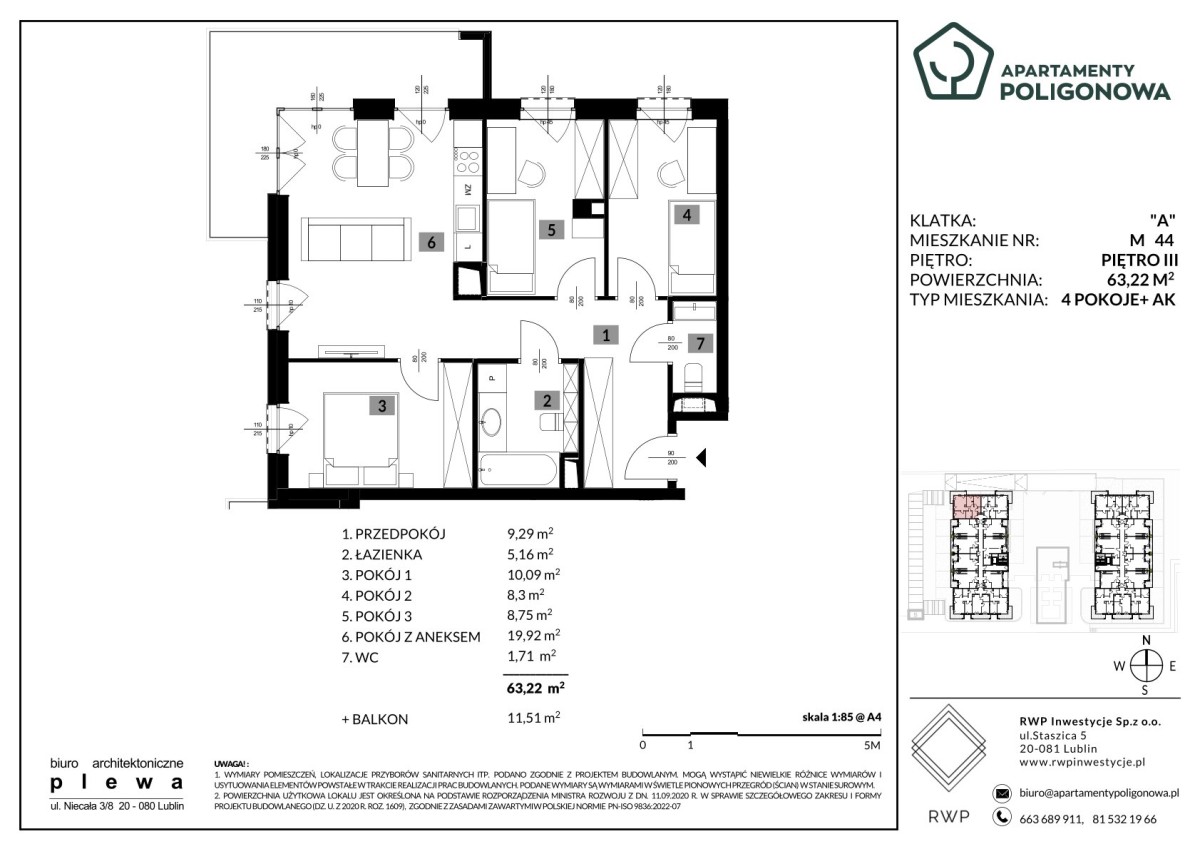
Liczba pokoi
4
Piętro
Piętro 3
Powierzchnia
63.22 m2
Balkon
11.51 m2
Zróżnicowany metraż
Kameralny budynek
Komfort i wygoda
Niepowtarzalny design