Zróżnicowany metraż
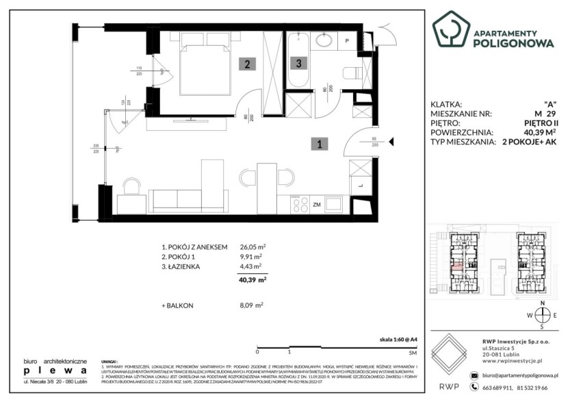
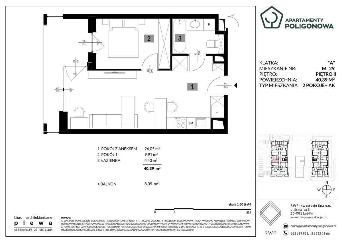
Mieszkanie 29
Liczba pokoi
2
Piętro
Piętro 2
Powierzchnia
40.39 m2
Balkon
8.09 m2
Apartamenty Poligonowa
Kameralny budynek
Komfort i wygoda
Niepowtarzalny design
Zapytaj O mieszkanie
Liczba pokoi
2
Piętro
Piętro 2
Powierzchnia
40.39 m2
Balkon
8.09 m2
Zróżnicowany metraż
Kameralny budynek
Komfort i wygoda
Niepowtarzalny design