Zróżnicowany metraż
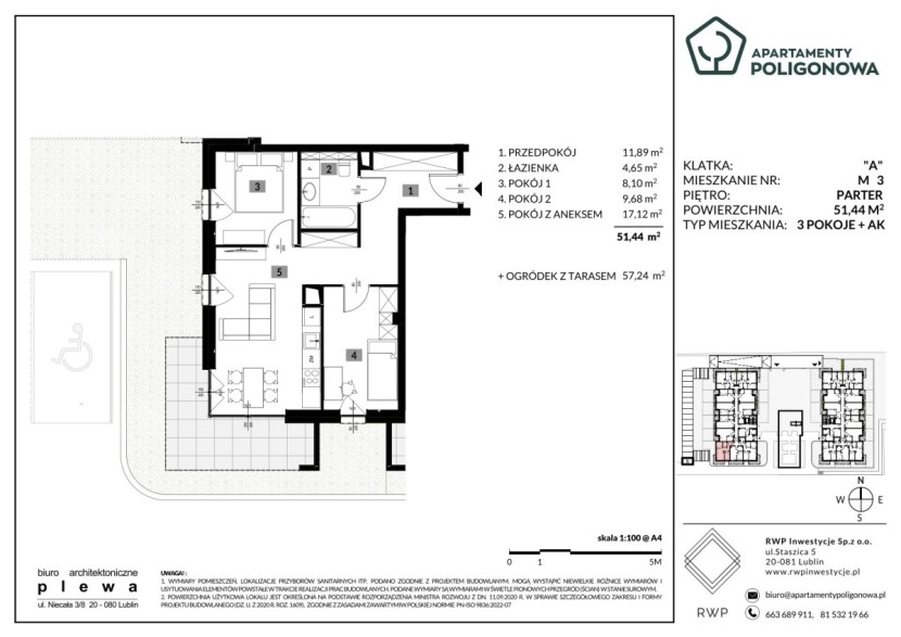
Mieszkanie 3
Liczba pokoi
3
Piętro
Parter
Powierzchnia
51.44 m2
Ogródek
57.24 m2
Apartamenty Poligonowa
Kameralny budynek
Komfort i wygoda
Niepowtarzalny design
Zapytaj O mieszkanie
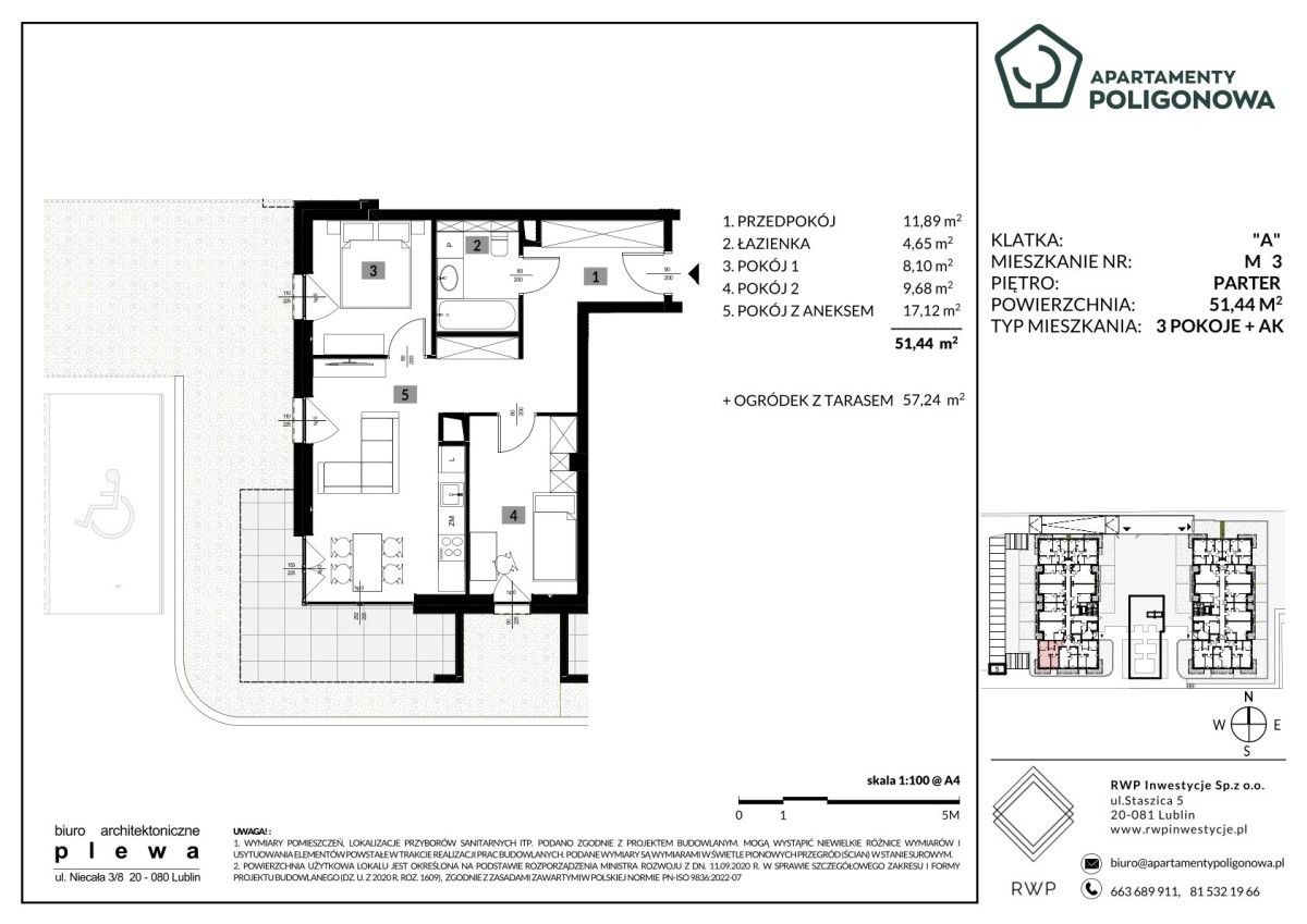
Liczba pokoi
3
Piętro
Parter
Powierzchnia
51.44 m2
Ogródek
57.24 m2
Zróżnicowany metraż
Kameralny budynek
Komfort i wygoda
Niepowtarzalny design