Zróżnicowany metraż
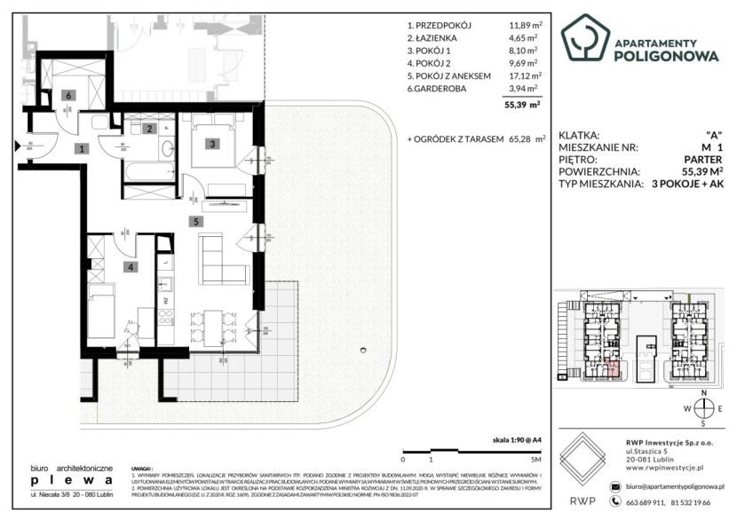
Mieszkanie 1
Liczba pokoi
3
Piętro
Parter
Powierzchnia
55.39 m2
Ogródek
65.28 m2
Apartamenty Poligonowa
Kameralny budynek
Komfort i wygoda
Niepowtarzalny design
Zapytaj O mieszkanie
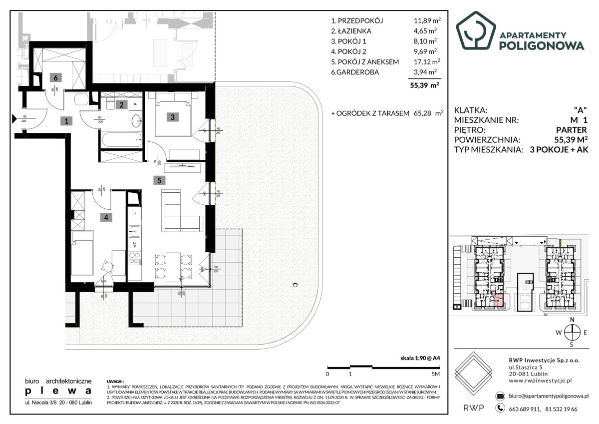
Liczba pokoi
3
Piętro
Parter
Powierzchnia
55.39 m2
Ogródek
65.28 m2
Zróżnicowany metraż
Kameralny budynek
Komfort i wygoda
Niepowtarzalny design